Làm cách nào để xử lý nước thải giặt là một cách đơn giản và giảm thiểu chi phí? Bài viết sẽ đưa ra công nghệ xử lý nước thải giặt là đơn giản nhất
Cẩm nang về quy trình xử lý nước thải giặt là hiện nay
Nước thải giặt là trở thành một trong những mối quan tâm hàng đầu đối với môi trường hiện nay. Lượng nước thải này chứa nhiều những chất độc hại gây ảnh hưởng trực tiếp đến sức khỏe và đời sống con người. Nếu không được xử lý đúng cách có thể sẽ gây nên những hậu quả nghiêm trọng đối với môi trường về sau. Bài viết dưới đây sẽ cho độc giả có được cái nhìn tổng quan về quy trình xử lý nước thải giặt là, hãy cùng theo dõi chi tiết!

Nước thải giặt là phát sinh từ đâu?
Nước thải giặt là chính là nguồn nước được thải ra sau những hoạt động giặt, ủi quần áo, chăn màn, đồ dùng thiết yếu …của con người.
Nước thải giặt là phát sinh từ đâu
Có thể chia ra làm hai nguồn phát sinh cụ thể theo quy mô:
- Từ mô hình hoạt động cá nhân công suất nhỏ. Tiêu biểu như những tiệm, cửa hàng giặt ủi nhỏ lẻ,…
- Từ mô hình hoạt động công nghiệp với công suất hoạt động lớn hơn. Đó là trong phạm vị của khu công nghiệp, công ty chuyên giặt là. Sở dĩ có quy mô lớn là bởi khách hàng của họ chính là những nhà hàng, bệnh viện, khách sạn lớn,…Sản phẩm giặt là đa dạng với số lượng nhiều.
Thành phần nước thải giặt là
Thành phần nước thải giặt là
| STT | Tên thành phần | Đơn vị tính | Giá trị đầu vào | QCVN 40:2011/BTNMT | |
| Cột A | Cột B | ||||
| 1 | BOD5 | mg/l | 80 – 200 | 30 | 50 |
| 2 | COD | mg/l | 200 – 500 | 75 | 150 |
| 3 | pH | – | 8.8 – 10 | 6 – 9 | 5.5 – 9 |
| 4 | TSS | mg/l | 229 – 461 | 50 | 100 |
| 5 | Độ màu | Pt-Co | 100 – 250 | 50 | 150 |
| 6 | Nhiệt độ | độ C | 45 | 40 | 40 |
| 7 | Mức tiêu thụ nước | l/kg vải | 20 – 30 | ||
| 8 | Dầu mỡ | mg/l | 1500 – 3200 | 5 | 10 |
Trong nước thải giặt là có gì? Tại sao chúng gây nên những tác động nghiêm trọng đến môi trường sống của chúng ta.
Với mục đích làm sạch, đánh bay vết bẩn thì trong nước thải giặt là tất nhiên sẽ chứa những chất tẩy rửa. Đó là:
- Chất vô cơ: chất tẩy rửa, clo, xà phòng, dung môi thơm, dầu mỡ, chất béo,…
- Chất hữu cơ: ion kim loại, chất tạo bọt, kim loại nặng, chất tẩy, phẩm màu,…
Hàm lượng của những chất tẩy rửa này là khác nhau nên quy trình xử lý gặp nhiều khó khăn. Hãy cùng tham khảo về bảng thành phần nước giặt là ngay bên dưới đây!
Tác động của nước thải giặt là đến môi trường
Trong nước thải giặt là có gì? Tại sao chúng gây nên những tác động nghiêm trọng đến môi trường sống của chúng ta.
Với mục đích làm sạch, đánh bay vết bẩn thì trong nước thải giặt là tất nhiên sẽ chứa những chất tẩy rửa. Đó là:
- Chất vô cơ: chất tẩy rửa, clo, xà phòng, dung môi thơm, dầu mỡ, chất béo,…
- Chất hữu cơ: ion kim loại, chất tạo bọt, kim loại nặng, chất tẩy, phẩm màu,…
Hàm lượng của những chất tẩy rửa này là khác nhau nên quy trình xử lý gặp nhiều khó khăn. Hãy cùng tham khảo về bảng thành phần nước giặt là ngay bên dưới đây!
Tác động của nước thải giặt là đến môi trường
Vậy, nước thải giặt là thực chất có ảnh hưởng như thế nào đến môi trường? Cùng phân tích với chúng tôi qua một số những thông tin sau:
Về bản chất, nước thải giặt là có chứa nhiều những chất tẩy trắng, chất tạo bọt, cặn lơ lửng cao,…
Việc xử lý diễn ra không triệt để, hiệu quả hoặc không xử lý mà trực tiếp thải ra môi trường sẽ đem đến những hậu quả khôn lường. Gây ảnh hưởng trực tiếp lên nguồn nước được thải vào. Mọi hoạt động sống của những loài thủy sinh, vi sinh vật,… sẽ bị hủy hoại nghiêm trọng.
Nước ô nhiễm cũng chính là nguyên nhân gây nên tình trạng ô nhiễm đất gần đó. Ngoài ra, nguồn nước ngầm nằm sâu bên trong lòng đất cũng bị ảnh hưởng.
Không kể đời sống cư dân những vùng ô nhiễm sẽ bị ảnh hưởng nghiêm trọng. Mùi hôi thối bốc lên gây ảnh hưởng đến mỹ quan, thậm chí là mắc những căn bệnh liên quan đến đường hô hấp.
Tác động của nước thải giặt là đến môi trường
Giải pháp tối ưu hiện tại chính là cần ứng dụng công nghệ trong xử lý nước thải giặt là trước khi đưa chúng vào môi trường.
Quy trình công nghệ xử lý nước thải giặt là hiện nay
Để hiểu kỹ càng hơn về quy trình công nghệ trong xử lý nước thải giặt là, hãy cùng theo dõi những nội dung chi tiết bên dưới đây!
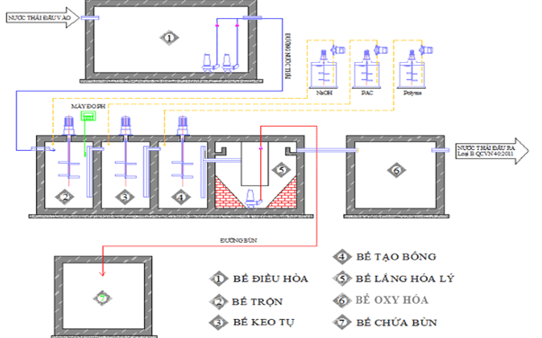
Sơ đồ công nghệ xử lý nước thải giặt là

Từng bộ phận, hệ thống trong quy trình xử lý nước thải giặt là sẽ đảm nhiệm những chức năng khác nhau:
Bể thu gom
Đây là nơi tiếp nhận trực tiếp nước thải giặt là từ hệ thống những cơ sở tiệm giặt là, công ty giặt là,…Sau đó, chúng được lọc qua thanh chắn để loại bỏ những rác vướng có trong nước. Rồi được đưa đến bể điều hòa.
Bể điều hòa
Với nhiệm vụ chính là khuấy đều nước thải giặt là khiến chúng ổn định lưu lượng và tính chất thành phần. Bể này thường đi kèm với máy khuấy để đảo trộn đề thành phần nước thải.
Mỗi khi hệ thống xử lý nước thải giặt là được bảo trì, sửa chữa thì bể điều hòa chính là nơi lưu giữ tạm thời lượng nước thải.
Tại bể điều hòa, 10% lượng thải hữu cơ, vô cơ sẽ được xử lý. Sau đó tiếp tục được đưa đến bể keo tụ tạo bông.
Bể keo tụ tạo bông
Bể này giúp loại bỏ những chất rắn lơ lửng có trong nước thải giặt là tiếp nhận ở trên. Tại đây, hóa chất keo tụ và trợ keo tụ sẽ được bơm vào. Khi kết hợp với những chất rắn lửng lơ có trong nước thải sẽ khiến chúng đông tụ thành hạt với kích thước lớn hơn. Chúng được gọi là bông cặn.
Bông cặn cùng nước thải giặt là sẽ tiếp tục di chuyển đến bể lắng 2.
Quy trình công nghệ xử lý nước thải giặt là
Bể lắng 2
Nhiệm vụ của này là sử dụng trọng lực, tách bông cặn với lượng nước thải còn lại. Lượng nước thải sau khi được châm hóa chất sẽ phân thành 2 pha, pha bùn và pha nước trong.
Phần bùn cặn sau khi đi vào bể lắng nhờ trọng lực sẽ lắng xuống dưới và được bơm thu bùn vận chuyên sang bể chứa bùn. Có thể sử dụng Máy ép bùn khung bản để ép khô lượng bùn nà
Phần nước trong sau lắng được dẫn tiếp sang bể chứa trung gian
Bể lọc áp lực
Tại đây những hạt cặn nhỏ hơn chưa được xử lý sẽ được loại bỏ ra khỏi nước. Với sự hỗ trợ của những vật liệu lọc quen thuộc (cát thạch anh, than hoạt tính…). Sau đó nước thải tiếp tục chảy xuống bể khử trùng.
Bể khử trùng
Bể này được bơm một lượng Chlorine theo tỷ lệ với quy chuẩn nhất định. Nhằm xử lý còn lại số vi sinh vật có hại trong nước thải.
Bể chứa bùn
Bể chứa bùn sẽ là nơi lắng đọng và xử lý bông cặn trong bể lắng 2.
Phương pháp khác để công nghệ xử lý nước thải giặt là ứng dụng phổ biến hiện nay
Ngoài phươg pháp xử lý nước thải giặt là bằng phươg pháp hóa lý nêu trên, trong trường hợp lượng nước thải giặt là chiếm lưu lượng nhỏ trong tổng lưu lượng của dòng thải, ta có thể trộn lẫn nước thải giặt là vào nước thải sinh hoạt và xử lý bằng công nghệ sinh học ở các bể xử lý nước thải sinh hoạt phía sau.
Nguyên tắc chung là sẽ bổ sung thêm những vi sinh vật, nhằm thúc đẩy quá trình oxy hóa và phân hủy những chất tẩy rửa có trong nước thải giặt là.
Trên đây là toàn bộ những thông tin bổ ích liên quan đến xử lý nước thải giặt là. Hãy liên hệ ngay với công ty Môi trường CCEP ngay khi khách hàng có bất kỳ nhu cầu gì liên quan đến xử lý với nước thải giặt là nói riêng.
Xin vui lòng gọi đến số hotline 091.789.633 hoặc truy cập website chính thức https://ccep.com.vn/ để được tư vấn kỹ càng hơn.
Tìm hiểu về chúng tôi
- Website: Công ty Môi trường CCEP
- Theo dõi chúng tôi trên Facebook: Công ty Môi trường CCEP
- Hotline: 091.789.6633
- Email: ccep.vn@gmail.com
- Xưởng sản xuất thiết bị: Xuân Trạch – Xuân Canh – Đông Anh – Hà Nội
- VPĐD: Nhà NV 6.1 Khu đô thị Viglacera Hữu Hưng – 272 Hữu Hưng – Nam Từ Liêm – Hà Nội


Xử lý nước thải sinh hoạt
Bài viết liên quan